New Build - Villa - Fuente Álamo - Las Palas

Murcia

Ask for information

Responsable del tratamiento: Castillo Homes, Finalidad del tratamiento: Gestión y control de los servicios ofrecidos a través de la página Web de Servicios inmobiliarios, Envío de información a traves de newsletter y otros, Legitimación: Por consentimiento, Destinatarios: No se cederan los datos, salvo para elaborar contabilidad, Derechos de las personas interesadas: Acceder, rectificar y suprimir los datos, solicitar la portabilidad de los mismos, oponerse altratamiento y solicitar la limitación de éste, Procedencia de los datos: El Propio interesado, Información Adicional: Puede consultarse la información adicional y detallada sobre protección de datos Aquí.

KEY READY SEMI-DETACHED VILLA IN FUENTE ALAMO, MURCIA

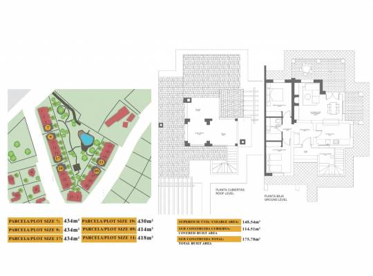
  • Ref.: NB-66982,
  • 2 Bed,
  • 1 Bath,
  • 175m2,
  • 414m2,
  • 242.000 €

KEY READY SEMI-DETACHED VILLA IN FUENTE ALAMO, MURCIA Residential of townhouses, independent and semi-detached villas in Fuente Álamo, Murcia. There are seven different models of houses to choose from, designed to suit everyone’s taste. Rustic designs combined with top quality materials and a focus on comfortable living space there is something for everyone. The residents of this private community of beautiful, spacious homes will also be able to enjoy their own communal gardens and swimming pools. This unusual design semi-detached villa has 2 bedrooms and 1 bathroom, independent kitchen, living room with patio doors leading onto the covered porch and semi covered roof top terrace. An options for a private pool at an extra cost. Fuente Álamo de Murcia is a town and municipality in the Region of Murcia, southern Spain. It is situated 22 km northwest of Cartagena and 35 km south west of Murcia. The town lies in the basin of the Mar Menor surrounded by the mountains of Algarrobo, Los Gómez, Los Victorias and the Carrascoy. The water from these mountains flows down into the Rambla de Fuente Álamo and then onto the Mar Menor. Fuente Álamo located 30 minutes from Murcia - Corvera airport.

key features

Bed: 2
Bath: 1
Built: 175m2
Plot: 414m2
Energy Rating: B
Energy Rating

Energy Rating: B

Features

Garden
Gated
Number of Parking Spaces: 1
Air Conditioning: Pre-Installed
Double Bedrooms: 2
Key Ready
Location: Rural, Urbanisation
Terrace: 45 Msq.
Beach: 7500 Meters
Useable Build Space: 148 Msq.

Location

Economy

This info given here is subject to errors and do not form part of any contract. The offer can be changed or withdrawn without notice. Prices do not include purchase costs.

Currency exchange

  • Pounds: 210.947 GBP
  • Russian ruble: 210.947 RUB
  • Swiss franc: 223.390 CHF
  • Chinese yuan: 1.947.689 CNY
  • Dollar: 285.487 USD
  • Swedish krona: 2.614.326 SEK
  • The Norwegian crown: 2.666.114 NOK

Similar Properties

© 2026 Real Estate · Legal · Privacy · Cookies · Web map · Design: Mediaelx

WhatsApp