Obra nueva - Chalet - Fuente Álamo - Las Palas

Murcia

Solicitar información

Responsable del tratamiento: Castillo Homes, Finalidad del tratamiento: Gestión y control de los servicios ofrecidos a través de la página Web de Servicios inmobiliarios, Envío de información a traves de newsletter y otros, Legitimación: Por consentimiento, Destinatarios: No se cederan los datos, salvo para elaborar contabilidad, Derechos de las personas interesadas: Acceder, rectificar y suprimir los datos, solicitar la portabilidad de los mismos, oponerse altratamiento y solicitar la limitación de éste, Procedencia de los datos: El Propio interesado, Información Adicional: Puede consultarse la información adicional y detallada sobre protección de datos Aquí.

PAREADO LLAVE EN MANO EN FUENTE ALAMO, MURCIA

  • Ref.: NB-66982,
  • 2 Hab,
  • 1 Baños,
  • 175m2,
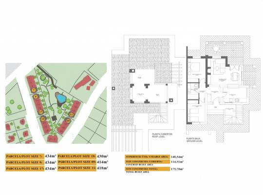
  • 414m2,
  • 242.000 €

PAREADO LLAVE EN MANO EN FUENTE ALAMO, MURCIA Residencial de adosados, villas independientes y pareados en Fuente Álamo, Murcia. Hay siete modelos diferentes de casas para elegir, diseñados para adaptarse al gusto de todos. Diseños rústicos combinados con materiales de primera calidad y un enfoque en el espacio de vida cómodo hay algo para todos. Los residentes de esta comunidad privada de hermosas y amplias casas también podrán disfrutar de sus propios jardines y piscinas comunitarias. Este pareado de diseño inusual tiene 2 dormitorios y 1 baño, cocina independiente, salón con puertas de patio que dan acceso al porche cubierto y a la terraza semicubierta de la azotea. Tiene la opción de una piscina privada con un coste adicional. Fuente Álamo de Murcia es una localidad y municipio de la Región de Murcia, en el sur de España. Está situada a 22 km al noroeste de Cartagena y a 35 km al suroeste de Murcia. La ciudad se encuentra en la cuenca del Mar Menor, rodeada por las sierras de Algarrobo, Los Gómez, Los Victorias y el Carrascoy. El agua de estas montañas fluye hacia la Rambla de Fuente Álamo y luego hacia el Mar Menor. Fuente Álamo se encuentra a 30 minutos del aeropuerto de Murcia - Corvera.

Información clave

Hab: 2
Baños: 1
Construidos: 175m2
Parcela: 414m2
Calificación energética: B
Calificación energética

Calificación energética: B

Características

Useable Build Space: 148 Msq.
Jardín
Gated
Number of Parking Spaces: 1
Air Conditioning: Pre-Installed
Double Bedrooms: 2
Key Ready
Location: Rural, Urbanisation
Terrace: 45 Msq.
Beach: 7500 Meters

Localización

Economía

Esta información que se proporciona aquí está sujeta a errores y no forma parte de ningún contrato. La oferta se puede cambiar o retirar sin previo aviso. Los precios no incluyen los costes de compra

Cambio de divisas

  • Libras: 209.112 GBP
  • Rublo Ruso: 209.112 RUB
  • Franco Suizo: 221.575 CHF
  • Yuan Chino: 1.935.734 CNY
  • Dolar: 284.616 USD
  • Corona Sueca: 2.623.764 SEK
  • Corona Noruega: 2.618.803 NOK

Propiedades similares

© 2026 Real Estate · Nota legal · Privacidad · Cookies · Mapa Web · Diseño: Mediaelx

WhatsApp